融科建筑工程
首页
关于我们
产品中心
全球案例
联系我们
售前:18560597273
售后:18560597273
首页
恒温系统
板式热交换器
板式热交换器
产品介绍:
18560597273
联系我们
分享:
产品详情
产品描述
技术参数
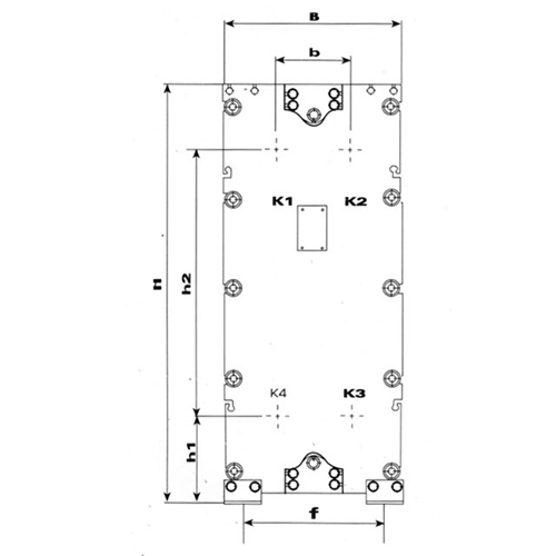
结构尺寸图
产品推荐